Pimpama

43 Oxford St

* Walk to School and Childcare * Catch the Bus to the Train *

Gas Hot Water savings at this property vs Electric hot water at other properties.
Save $100's on your power bills each year.
Brand new build in a great street. Near Pimpama Secondary School but not on the main thoroughfare - instead tucked right away from the everyday bustle and the traffic.
An abundance of extra features (seldom found) in one property, are just waiting for you.

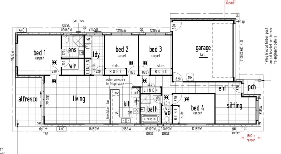
* SECURITY SCREENS on ALL doors and windows
* GAS Cooking
* GAS Hot Water
* PLUMBED for WATER FRIDGE SPACE
* Air Conditioning
* SEPARATE Sitting Room
* SEPARATE Laundry with BUILT IN CABINETRY CUPBOARDS & a decent BENCH
* Ceiling Fans
* Dishwasher
* Under Roof Outdoor Patio
* Stone Bench tops
* HOSE & RAIL SHOWERHEADS
* Neutral colour scheme throughout
Note:Internal photos may be of a different colour scheme at this property that the ones shown in this advertisement.

DISCLAIMER: We have in preparing this advertisement used our best endeavours to ensure the information contained is true and accurate, but accept no responsibility and disclaim all liability in respect to any errors, omissions, inaccuracies or misstatements contained. Prospective purchasers/tenants should make their own enquiries to verify the information contained in this advertisement.

Leased for $460

4
2
2
No

Property Features

  • Property ID
    20251987
  • Air Conditioning
  • Built In Robes
  • Dishwasher
  • Outdoor Ent
  • Remote Garage

Contact

Share